Vista Del Osos , Los Osos, CA 93402

  • $435,000
  • $469,000
Vista Del Osos , Los Osos, CA 93402
Active
Vista Del Osos , Los Osos, CA 93402
Vista Del Osos , Los Osos, CA 93402
  • $435,000
  • $469,000

Description

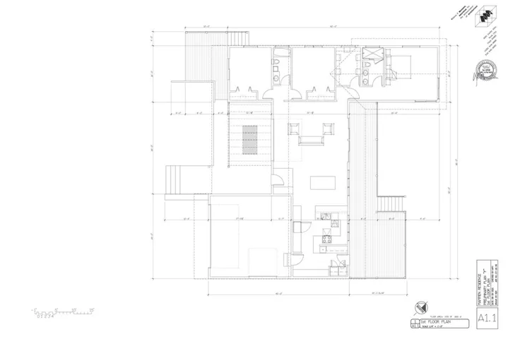
BUILD NOW!!! Owner financing available, Minor Use Permit (MUP) in process, water meter installed, environmental and archeological reports completed, HCP/ITP in place! Building permit next – then choose your finishes! Floor plan, site plan, and elevations submitted with the MUP for a beautiful 1900+ square foot 3-bedroom, 2-bathroom home are included! This private and secluded 1/3+ acre property is located in the sunny Bayview Heights microclimate and has great views of the surrounding hills and mountains. Close to town, shopping, golfing, and Montana de Oro State Park with fantastic hiking, running, mountain biking, and horseback riding trails right on the Pacific Ocean – this property is a rare opportunity to have a brand-new home in Los Osos on the amazing Central Coast of California!

  • Address Vista Del Osos
  • State/county CA
  • Zip/Postal Code 93402
  • Country US

Details

Updated on March 12, 2026 at 7:41 pm
  • Property ID: SC21111184
  • Price: $435,000
  • Land Area: 0.3512 Acres
  • Garage Size: x x
  • Property Type: Land
  • Property Status: Active

Additional details

  • Listing Terms: Cash,Cash to New Loan
  • County: San Luis Obispo
  • Property Type: Land
  • Community Features: Biking,Fishing,Hiking,Horse Trails,Rural

Contact Information

View Listings
Hoyt Hochman

Enquire About This Property

Compare listings

Compare
Hoyt Hochman
  • Hoyt Hochman