1223 N Tustin , Anaheim, CA 92807

  • $1,475,000
1223 N Tustin , Anaheim, CA 92807
Active
1223 N Tustin , Anaheim, CA 92807
1223 N Tustin , Anaheim, CA 92807
  • $1,475,000

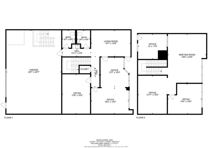
Description

Highly visible office/warehouse property offering 3,485 SF, 2,219 SF of office space and 1,021 SF of warehouse. The functional two-story layout features a reception area, five private offices, a conference room, and a warehouse with 14’ clear height.

Located in Tustin Ave Business Park with exposure to approximately 28,000 vehicles per day, the property provides excellent visibility and convenient access to the 91, 55, and 57 Freeways. Additional highlights include a strong parking ratio of 5.74/1,000 SF and a well-maintained HOA.

A 3D virtual tour is available, allowing prospective buyers to explore the layout and functionality of the property remotely.

  • Address 1223 N Tustin
  • City Anaheim
  • State/county CA
  • Zip/Postal Code 92807
  • Country US

Details

Updated on April 16, 2026 at 5:13 am
  • Property ID: OC26080377
  • Price: $1,475,000
  • Property Size: 3240 Sqft
  • Land Area: 0.231 Acres
  • Garage Size: x x
  • Year Built: 1982
  • Property Type: Office, Commercial Sale
  • Property Status: Active

Additional details

  • Listing Terms: Cash, Conventional
  • Utilities: Electricity Connected,Water Connected
  • Cooling: Central Air
  • Heating: Central
  • County: Orange
  • Property Type: Commercial Sale

360° Virtual Tour

Contact Information

View Listings
Hoyt Hochman

Enquire About This Property

Compare listings

Compare
Hoyt Hochman
  • Hoyt Hochman